Ubyssey News Profile picture
Sep 20 57 tweets 8 min read
Hello! We're back covering today's #UBCBoG committee meetings.

Up now is the Property Committee. Here's the agenda: bog3.sites.olt.ubc.ca/files/2022/09/…
Chair Miranda Lam opens the meeting with a land acknowledgment.

She also welcomes new faculty governor, Dr. Marianne Legault, from UBC Okanagan.
Lam says governors will hear an update on the eagle nest in Wesbrook during the closed session.

Some context: ubyssey.ca/news/bald-eagl…
Committee members approve the agenda and last meeting's minutes.
Now for a presentation + motion on the Interdisciplinary Collaboration & Innovation (ICI) Building at UBCO.

Deputy Vice-Chancellor + Principal of UBCO says this presentation shouldn't be a surprise to committee members.
Jennifer Sanguinetti says since the committee approved Board 2 of the ICI project, UBC has refined the design and continued to receive advice on incorporating Indigenous designs.
Sanguinetti adds that the construction team is looking to include a mini-plant to reduce operating costs and for sustainability.

The project is also out for tender, but the market volatility is a risk, she says.
A site schematic + visualization of the ICI building.
Sanguinetti says UBC is asking the Board for more money as part of Board 3 approval. Here is the full request:
She opens the floor to questions.
Max Holmes thanks everyone for the work on this project, particularly around sustainability. He asks about the debt servicing of this project split between UBC Okanagan and Vancouver.
Anderson says part of the interest payment will come from UBC Vancouver, but that UBC Okanagan will take on part of the investment costs, as well as the principle costs.

Yale Loh echoes this.
Anthonia Ogundele asks two questions:
1. Is support from the provincial + federal gov't off the table?
2. What is a typical fundraising goal for projects like this?
Sanguinetti says UBC was hopeful the gov't would be enticed by this project, but that it wasn't. She says UBC always planned not to receive this money, but that the university hasn't given up on asking.
Cormack says that fundraising isn't typically done for capital projects.
Dr. Anna Kindler asks if there is any other precedent of UBC Vancouver paying part of the interest on capital projects at UBC Okanagan.
Anderson says this is one of the first projects that UBCO will be bearing the brunt of the cost. He says interest relief from UBCV will help with this.
Loh says he doesn't think there is precedent for this.
Committee members are voting on this motion:
Holmes explains that he is abstaining because he has some questions about the financing model. But, he says he still supports the project.

Kindler echoes these comments.
With the two abstentions, the motion passes.
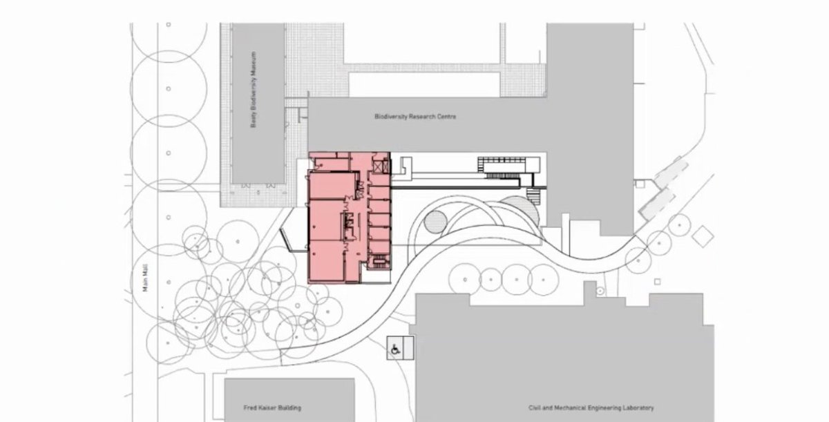
Next up is a presentation + motion on the Beaty Biodiversity Centre addition.
Sanguinetti is presenting again.

She says this addition will create additional museum space and house 10 PAEI-supported faculty.
Sanguinetti says the project will cost $40 million with funding coming from the Academic Capital Fund + confirmed donors.
She says the development team has been doing some "gymnastics" to make sure the project optimizes the small space.
She says UBC is requesting the removal of 14 trees behind the building in advance of nest season.

She says the university will receive advice from biodiversity experts on this removal. She adds that most people won't notice any change to the trees along Main Mall.
The proposed site. Sanguinetti notes that the proposed site in the first photo is larger than the actual footprint.
She opens the floor for questions.
Holmes says he supports the project. He asks why UBC doesn't have a biomass target for replacing removed trees.
Sanguinetti says UBC is proposing this removal early to ensure community members are aware of this removal early.

Michael White says UBC is working on targets related to ecosystem goals.
Kindler asks if the trees shown in the presentation are being removed.

Sanguinetti says those trees will remain.
Committee members are voting on the following motion:
It passes.
Now for a Seismic Resilience Plan update.

Metras says this update was deferred from the June Property Committee meeting, so he's excited to see it discussed today.
Sanguinetti says UBC has been looking at seismic retrofits since 1994. She says that, since 2016, the university has taken a more holistic approach.

She says today's presentation is specific to UBC Vancouver since UBC Okanagan is less at risk of seismic events.
She says UBC has a draft real estate framework to incorporate holistic thinking in building design and optimizing their resiliency.

She adds that advanced 3D modeling is progressing.
Sanguinetti says that UBC wants to get people out of damaged buildings quickly, but want to make sure re-occupancy efforts are streamlined. She shows this table which spaces will be prioritized in re-occupancy efforts:
She says UBC is hoping for support from the government to help with the improvement of some of the more vulnerable buildings on campus.
A map of all the retrofitted buildings on campus so far.
Some of the next steps. Sanguinetti notes that UBC will work to not impact its capacity for student housing through these improvements.
She opens the floor for questions.
Holmes asks about the efficiency for the Walter Gage retrofits. He also asks if Acadia Park has been included in retrofit reviews.
Sanguinetti says that Acadia Park was included.

On Holmes' first question, she says it would be difficult. to add beds at Gage, but there is room at Place Vanier. She says it's not a cookie-cutter approach.
Ogundele says she was also going to ask about housing. She thanks Sanguinetti and UBC for taking a more holistic approach.

She asks if UBC has considered looking into earthquake warning systems and sensors.
Sanguinetti says some sensors exist in labs, but that UBC is considering adding elsewhere. She says there are some logistical issues w/ adding these sensors, such as a lack of a PA system.

Metras echoes these comments.
With no more questions, its time for a presentation on a proposed new Policy UP13: Management of UBC-Controlled Land, Buildings and Infrastructure Policy.
Hubert Lai says the full text of the proposed policy is included in the submission to the Board.

He says the policy would recognize the Board's responsibility over UBC's property while also acknowledging it is the ancestral and traditional land of Indigenous peoples.
He says today's presentation is to hear feedback from the Property Committee. He adds if all goes well, the policy will be presented for public feedback and potential passage by March.
Lai opens the floor for questions.
Holmes asks if UBC will go to the Senate Academic Building Needs Committee before the Board approves this policy.

Lai says these people can reach out during the public feedback period, but that UBC will reach out directly to them as well.
BoG Chair Nancy McKenzie asks for clarification on how locations outside of UBCO and UBCV (i.e. buildings in downtown Kelowna, Surrey, and downtown Vancouver) would be included in this policy.
Lai says UBC only has two campuses, and that each of the additional sites McKenzie mentioned are associated w/ either UBC Vancouver and UBC Okanagan.
Kindler says this policy could be considered a joint policy of the Board and Senates given the implications for academic spaces.

She adds she is worried about the potential impacts on academic spaces, as well as the lack of mention of recreational space.
Lai says recreational spaces are included in administrative spaces. He says that the Board has an obligation to consult w/ the Senate on this, but that it's not required to be a joint policy.
Ogundele asks where emergency services fits into this policy.

Lai says these spaces are based on contracts w/ third parties. He says the policy will ensure these practices continue.
Now for the consent agenda items:
And with that, the open session is over! We'll be back around 4 for a short Executive Committee meeting.

• • •

Missing some Tweet in this thread? You can try to force a refresh
 

Keep Current with Ubyssey News

Ubyssey News Profile picture

Stay in touch and get notified when new unrolls are available from this author!

Read all threads

This Thread may be Removed Anytime!

PDF

Twitter may remove this content at anytime! Save it as PDF for later use!

Try unrolling a thread yourself!

how to unroll video
  1. Follow @ThreadReaderApp to mention us!

  2. From a Twitter thread mention us with a keyword "unroll"
@threadreaderapp unroll

Practice here first or read more on our help page!

More from @UbysseyNews

Sep 22
Hello! We're at tonight's #UBCSenate meeting, the first (partially) in-person meeting since the start of the pandemic.

The live stream on Facebook does not appear to be working, but here is the agenda anyways: scs-senate-2021.sites.olt.ubc.ca/files/20220921…
Santa Ono calls the first regular meeting of the academic year to order with a land acknowledgement.

Registrar Kate Ross welcomes Alex Mitchell, the new student representative from the Faculty of Dentistry.
The minutes of the May 18, 2022 meeting have been approved, with a small correction.
Read 88 tweets
Sep 22
On September 1, @cupe2278 soft-launched a union drive for research assistants, academic assistants and other student workers who aren’t yet unionized.

We spoke to organizers and supporters of the drive, and those who have successfully organized similar campaigns elsewhere. 1/
CUPE 2278 President Phyllis Pearson said the campaign comes after years of complaints around pay inequity, bullying and harassment from supervisors and unrealistic work expectations. 2/
Yi Chien Jade Ho was one of the lead organizers of the successful drive to unionize research assistants at SFU in 2019.

“It really comes down to organization and then really showing that there’s a collective will and there’s a collective power behind doing this,” she said. 3/
Read 5 tweets
Sep 21
Good morning! We're back covering the second day of #UBCBoG committee meetings.

The only meeting on today's schedule is the Audit Committee. Here's the (short) open session agenda: bog3.sites.olt.ubc.ca/files/2022/09/…
Chair Jessie Dusangh opens the meeting with a land acknowledgment.

He welcomes Azim Lalani as the new vice-chair of the committee, and thanks interim VP Finance Karamjeet Heer as this is her last Audit Committee before she leaves for SFU.
Committee members approve the open session agenda and the meeting minutes from their last committee meeting.
Read 5 tweets
Sep 21
We're at tonight's AMS VP finance by-election debate! Please DM us here or on Facebook with questions you want us to ask.

We will have a livestream link soon!
First, opening statements.
Lawrence Liu is an associate VP in the VP finance office. He says his involvement has given him a better understanding of AMS operations, and informed his platform on points like raising mental health coverage and opening a new business.
Read 62 tweets
Sep 20
And we're back for the final #UBCBoG meeting of today: Executive Committee.

Here's the (short) agenda for the open session: bog3.sites.olt.ubc.ca/files/2022/09/…
BoG + committee chair Nancy McKenzie opens the meeting with a land acknowledgment.
McKenzie welcomes Chaslyn Gillanders and Joel Solomon who were recently appointed as chairs of the Indigenous Engagement + Sustainability & Climate Action committees, respectively.
Read 6 tweets
Sep 20
Good morning! We're at today's UBC Board of Governors Finance Committee meeting. Here's the agenda: bog3.sites.olt.ubc.ca/files/2022/09/…
Chair Azim Lalani calls the meeting to order and gives a land acknowledgement. The agenda is approved.
The committee's June 15 meeting minutes are approved.
Read 41 tweets

Did Thread Reader help you today?

Support us! We are indie developers!


This site is made by just two indie developers on a laptop doing marketing, support and development! Read more about the story.

Become a Premium Member ($3/month or $30/year) and get exclusive features!

Become Premium

Don't want to be a Premium member but still want to support us?

Make a small donation by buying us coffee ($5) or help with server cost ($10)

Donate via Paypal

Or Donate anonymously using crypto!

Ethereum

0xfe58350B80634f60Fa6Dc149a72b4DFbc17D341E copy

Bitcoin

3ATGMxNzCUFzxpMCHL5sWSt4DVtS8UqXpi copy

Thank you for your support!

Follow Us on Twitter!

:(