OBRAS GESTIÓN MACRI

DÍA 5

ESTABLECIMIENTOS DE ATENCIÓN DE LA SALUD.

#GestiónMacri
NUEVO HOSPITAL DR. RAMÓN CARRILLO.
San Martín de Los Andes. Neuquén.
El nuevo edificio se utiliza como centro de diagnóstico, tratamiento, internación y rehabilitación de mediana complejidad, y continua siendo hospital cabecera de la zona IV.
Cuenta con una sala de esterilización, guardia, consultorios externos, sector de laboratorio e imágenes, 4 quirófanos, 2 salas de partos, 6 cunas de internación en neonatología, 6 camas para el hospital de día.
6 camas en terapia intensiva, 24 camas de internación materno infantil y 28 camas de internación para adultos.
HOSPITAL DE PORTEZUELO.
LA RIOJA.
Se trata de un hospital que cubre una gran demanda de población que entre Portezuelo y zonas aledañas será de 2.800 habitantes.
Tecnológicamente el edificio fue resuelto contemplando una gran flexibilidad funcional, con la posibilidad de permitir adaptaciones en su estructura de funcionamiento, razón por la cual se dividieron los espacios interiores con tabiques y cielorrasos desmontables.
NUEVO GERIÁTRICO MUNICIPAL DE VICENTE LÓPEZ.
El objetivo fue desarrollar la remodelación, construcción y ampliación de un nuevo Geriátrico Municipal, enfocándose en satisfacer la creciente demanda a nivel local y en mejorar la calidad de vida de todas las personas que allí se alojan.
Se hicieron 30 habitaciones, 26 de 3 camas y 4 individuales. La planta baja con la planta alta se unen a través de 2 núcleos de circulación vertical compuesto por escaleras y ascensores.
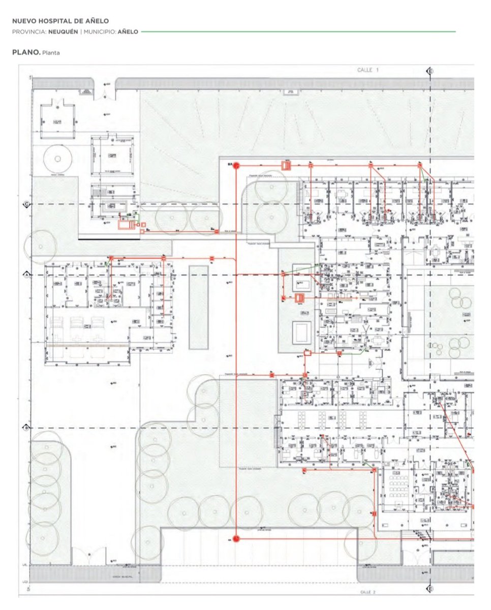
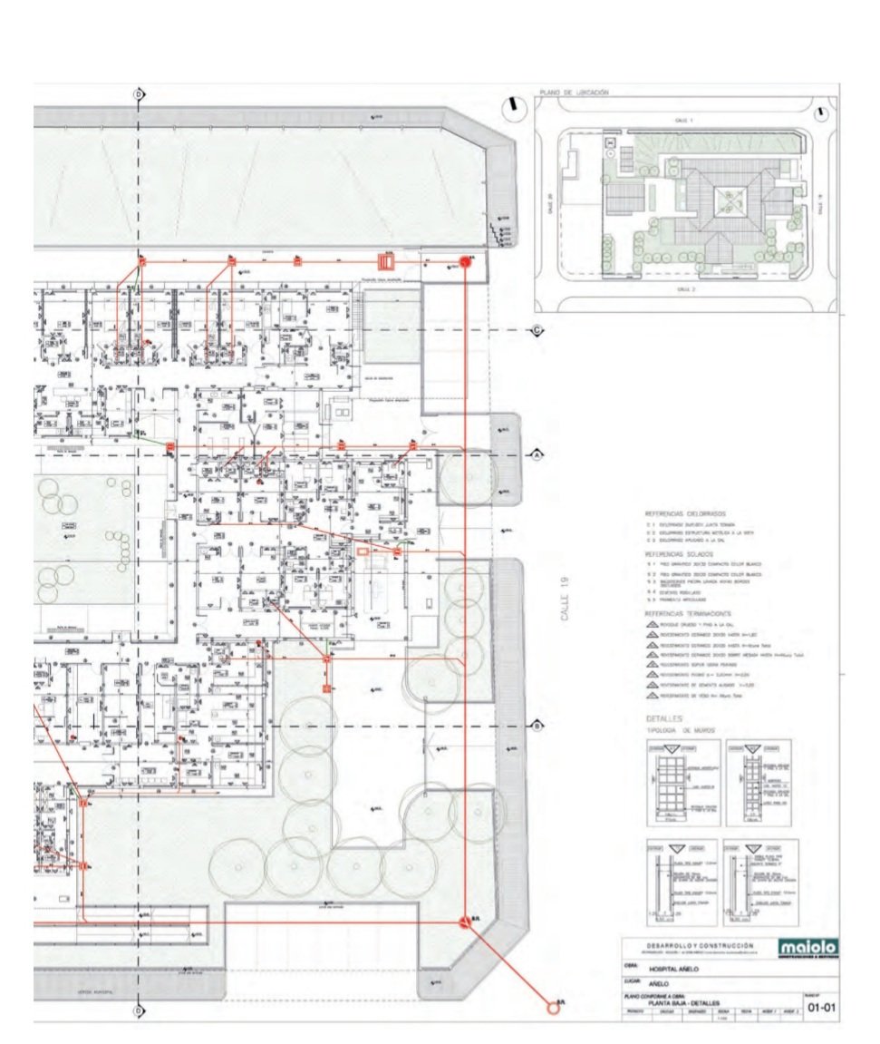
NUEVO HOSPITAL DE AÑELO
NEUQUÉN.
El Nuevo Hospital de Añelo se caracteriza como un establecimiento de tipo III b, contando los siguientes servicios: internación indiferenciada, sala de partos, laboratorios y radiología de baja complejidad.
Adicionalmente, el edificio ofrece un espacio exterior protegido con expansión y recreación de pacientes y personal.
El edificio funciona como centro de referencia solo del área de Añelo, no recibiendo derivaciones de otros establecimientos. La internación cuenta con una capacidad de 12 camas, más 2 ubicadas en el sector de pre-parto.
HOGAR DE PROTECCIÓN INTEGRAL. JUNIN. BUENOS AIRES.
El proyecto del hogar de protección integral, es una institución que actúa de hogar compartido fomentando la recuperación de la mujer. Para ello, el proyecto contempla la protección y funcionamiento como un complejo sistema de intimidad, comunidad y asistencia.
Se encuentra conformado por un hall de acceso, un área administrativa con dos oficinas, una sala blanda y una sala de reuniones, un área de residentes con tres dormitorios, una sala de actividades grupales, un salón de usos múltiples-comedor.
Además cuenta con una oficina de operadoras y un núcleo sanitarios para ambos sexos.
Podemos ver nuevamente que Macri hizo muchísimas obras, en distintas áreas, mucho lo han criticado, pero a la vista está de que su Gobierno invirtió en todos los sectores, buscando el beneficio de cada ciudadano argentino.
Estos son algunos de los tantos hospitales y centros de salud que se han llevado a cabo durante su mandato, muchas gracias @mauriciomacri por todo lo que hiciste y seguís haciendo por Argentina.
#GestiónMacri

• • •

Missing some Tweet in this thread? You can try to force a refresh
 

Keep Current with Marcos Palazzolo

Marcos Palazzolo Profile picture

Stay in touch and get notified when new unrolls are available from this author!

Read all threads

This Thread may be Removed Anytime!

PDF

Twitter may remove this content at anytime! Save it as PDF for later use!

Try unrolling a thread yourself!

how to unroll video
  1. Follow @ThreadReaderApp to mention us!

  2. From a Twitter thread mention us with a keyword "unroll"
@threadreaderapp unroll

Practice here first or read more on our help page!

More from @marcalpalazzolo

25 Jul
OBRAS GESTIÓN MACRI

DÍA 6

UNIVERSIDADES Y CENTROS DE FORMACIÓN: PARTE 1

#GestionMacri Image
EDIFICIO DE LABORATORIOS ETAPA II. FACULTAD DE CIENCIAS NATURALES Y MUSEO UNIVERSIDAD NACIONAL DE LA PLATA. Image
Image
Read 19 tweets
23 Jul
OBRAS GESTIÓN MACRI

DÍA 4

ESTABLECIMIENTOS EDUCATIVOS: JARDIN DE INFANTES Image
JARDIN 31: PILCOMAYO, FORMOSA. Image
El jardín cuenta con 3 aulas (con sanitarios c/u), S.U.M, área de gobierno, deposito, pergola exterior y playón de juego. Superficie 370 metros cuadrados.
Read 23 tweets
22 Jul
OBRAS GESTIÓN MACRI

DÍA 3:

METROBUS MORÓN, LA MATANZA Y QUILMES.
El 9 de octubre de 2018, Mauricio Macri inauguró en Morón el metrobus del Oeste, estuvieron presentes Vidal, @Guillodietrich y el mejor intendente de la historia de Morón @rctagliaferro
El Metrobus Oeste cubre 3.3 km a lo largo de siete estaciones, siempre a lo largo de la avenida Presidente Perón, ex Gaona, entre las calles La Rioja y Defensa, donde hay una bajada del Acceso Oeste.
Read 28 tweets
21 Jul
OBRAS GESTIÓN MACRI

DÍA 2:

Nueva estación depuradora de aguas residuales. General Pueyrredón. Abro hilo.
La nueva Planta de tratamiento de efluentes cloacales para la ciudad de Mar del Plata es llevada a cabo con el fin de mejorar y optimizar la calidad ambiental de la zona, razón por la cual la planta ing. Baltar queda fuera de servicio y es demolida.
La nueva Estación depuradora está ubicada en un predio a 600 metros al norte de dicha Planta y cuenta con un nuevo sistema que se encarga de acondicionar el efluente cloacal y se adapta a las condiciones de descarga del emisario submarino.
Read 11 tweets
20 Jul
Día 1: Agua potable y saneamiento.
A continuación verán un mapa de las obras realizadas sobre este ítem por provincia, en este primer día mostraré la obra del sistema Riachuelo, obrador Dock Sud en Buenos Aires, lotes 1,2 y 3, abro hilo. Image
El sistema Riachuelo fue concebido como una solución integral para dar respuesta a las limitaciones de capacidad y calidad de prestación del servicio de desagües cloacales en gran parte del área de concesión de AySA
Se trata de una obra que brinda la solución estructural necesaria para mejorar el sistema. Propicia el saneamiento del Riachuelo en lo que concierne a la contaminación por efluentes cloacales.
Read 7 tweets

Did Thread Reader help you today?

Support us! We are indie developers!


This site is made by just two indie developers on a laptop doing marketing, support and development! Read more about the story.

Become a Premium Member ($3/month or $30/year) and get exclusive features!

Become Premium

Too expensive? Make a small donation by buying us coffee ($5) or help with server cost ($10)

Donate via Paypal Become our Patreon

Thank you for your support!

Follow Us on Twitter!

:(