OBRAS GESTIÓN MACRI

DÍA 6

UNIVERSIDADES Y CENTROS DE FORMACIÓN: PARTE 1

#GestionMacri
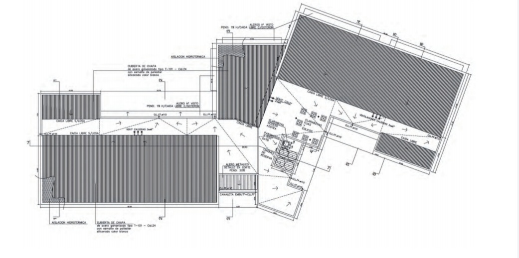
EDIFICIO DE LABORATORIOS ETAPA II. FACULTAD DE CIENCIAS NATURALES Y MUSEO UNIVERSIDAD NACIONAL DE LA PLATA.
Compuesto de dos niveles, vinculados mediante un conector en el primer nivel con la primera etapa que fuera construida anteriormente. Con la implantación enmarca un patio central entre ambos edificios.
Consta de laboratorios para diferentes especialidades, gabinetes, áreas administrativas de apoyo y servicios. Se relaciona interamente a través de una circulación de doble crujía y conectores verticales.
El edificio cuenta con instalación sanitaria contra incendio, eléctrica, canalizaciones para datos, telefonía y calefacción por radiadores.
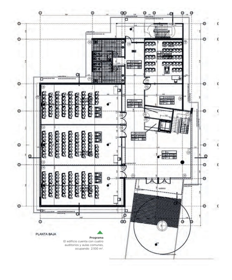
MÓDULO AULAS COMUNES UNIVERSIDAD NACIONAL DEL SUR EN BAHÍA BLANCA. BUENOS AIRES.
Edificio de aulas destinado al uso común de carreras varias de la Universidad Nacional del Sur.
La obra se compone de muros de mampostería doble, ladrillo visto exterior, cubiertas generales de chapa, losas planas, aluminio en ventanas, puertas, marcos, hojas de chapas y cielorrasos de placa.
EDIFICIO PARA AULAS COMUNES. CIUDAD UNIVERSITARIA. CÓRDOBA.
Edificio en altura ubicado en el predio de Ciudad Universitaria de la Universidad Nacional de Córdoba, con aulas varias destinadas al uso común de carreras varias que se desarrollan en esta Universidad.
La obra pretende mejorar la capacidad operativa del predio universitario, sumando nuevos espacios para el desarrollo educativo.
Los kirchneristas han criticado a Macri por no invertir en universidades, una vez más mostramos que la realidad es distinta, en la gestión de @mauriciomacri se invirtió muchísimo en esta área, en la etapa 2 seguiré mostrando más inversiones en universidades y centros de formación
Las obras siguen estando ahí, son presente y futuro, muchas gracias presidente Mauricio Macri por pensar en todos los argentinos❤ las obras son para el uso y disfrute de cada uno de nosotros.

• • •

Missing some Tweet in this thread? You can try to force a refresh
 

Keep Current with Marcos Palazzolo

Marcos Palazzolo Profile picture

Stay in touch and get notified when new unrolls are available from this author!

Read all threads

This Thread may be Removed Anytime!

PDF

Twitter may remove this content at anytime! Save it as PDF for later use!

Try unrolling a thread yourself!

how to unroll video
  1. Follow @ThreadReaderApp to mention us!

  2. From a Twitter thread mention us with a keyword "unroll"
@threadreaderapp unroll

Practice here first or read more on our help page!

More from @marcalpalazzolo

24 Jul
OBRAS GESTIÓN MACRI

DÍA 5

ESTABLECIMIENTOS DE ATENCIÓN DE LA SALUD.

#GestiónMacri
NUEVO HOSPITAL DR. RAMÓN CARRILLO.
San Martín de Los Andes. Neuquén.
El nuevo edificio se utiliza como centro de diagnóstico, tratamiento, internación y rehabilitación de mediana complejidad, y continua siendo hospital cabecera de la zona IV.
Read 31 tweets
23 Jul
OBRAS GESTIÓN MACRI

DÍA 4

ESTABLECIMIENTOS EDUCATIVOS: JARDIN DE INFANTES Image
JARDIN 31: PILCOMAYO, FORMOSA. Image
El jardín cuenta con 3 aulas (con sanitarios c/u), S.U.M, área de gobierno, deposito, pergola exterior y playón de juego. Superficie 370 metros cuadrados.
Read 23 tweets
22 Jul
OBRAS GESTIÓN MACRI

DÍA 3:

METROBUS MORÓN, LA MATANZA Y QUILMES.
El 9 de octubre de 2018, Mauricio Macri inauguró en Morón el metrobus del Oeste, estuvieron presentes Vidal, @Guillodietrich y el mejor intendente de la historia de Morón @rctagliaferro
El Metrobus Oeste cubre 3.3 km a lo largo de siete estaciones, siempre a lo largo de la avenida Presidente Perón, ex Gaona, entre las calles La Rioja y Defensa, donde hay una bajada del Acceso Oeste.
Read 28 tweets
21 Jul
OBRAS GESTIÓN MACRI

DÍA 2:

Nueva estación depuradora de aguas residuales. General Pueyrredón. Abro hilo.
La nueva Planta de tratamiento de efluentes cloacales para la ciudad de Mar del Plata es llevada a cabo con el fin de mejorar y optimizar la calidad ambiental de la zona, razón por la cual la planta ing. Baltar queda fuera de servicio y es demolida.
La nueva Estación depuradora está ubicada en un predio a 600 metros al norte de dicha Planta y cuenta con un nuevo sistema que se encarga de acondicionar el efluente cloacal y se adapta a las condiciones de descarga del emisario submarino.
Read 11 tweets
20 Jul
Día 1: Agua potable y saneamiento.
A continuación verán un mapa de las obras realizadas sobre este ítem por provincia, en este primer día mostraré la obra del sistema Riachuelo, obrador Dock Sud en Buenos Aires, lotes 1,2 y 3, abro hilo. Image
El sistema Riachuelo fue concebido como una solución integral para dar respuesta a las limitaciones de capacidad y calidad de prestación del servicio de desagües cloacales en gran parte del área de concesión de AySA
Se trata de una obra que brinda la solución estructural necesaria para mejorar el sistema. Propicia el saneamiento del Riachuelo en lo que concierne a la contaminación por efluentes cloacales.
Read 7 tweets

Did Thread Reader help you today?

Support us! We are indie developers!


This site is made by just two indie developers on a laptop doing marketing, support and development! Read more about the story.

Become a Premium Member ($3/month or $30/year) and get exclusive features!

Become Premium

Too expensive? Make a small donation by buying us coffee ($5) or help with server cost ($10)

Donate via Paypal Become our Patreon

Thank you for your support!

Follow Us on Twitter!

:(