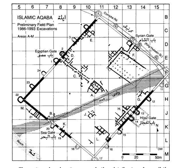
Yes, it is reasonable. Given that it was built on new land, and given the location of Ayla as a nexus of early Islamic trade, we should take ~215° seriously.
oi.uchicago.edu/sites/oi.uchic…
Keep Current with Naqad Studies
This Thread may be Removed Anytime!
Twitter may remove this content at anytime, convert it as a PDF, save and print for later use!
1) Follow Thread Reader App on Twitter so you can easily mention us!
2) Go to a Twitter thread (series of Tweets by the same owner) and mention us with a keyword "unroll"
@threadreaderapp unroll
You can practice here first or read more on our help page!






